بيع أراضي مشروع العالية “زون 5” بالمزاد العلني 14 فبراير
أعلنت شركة “العالية العقارية” عن موعد طرح أراضي مشروع “العالية” (زون 5) للبيع في المزاد العلني، وذلك يوم الأربعاء الموافق 14 فبراير 2024م، الساعة 4:00 عصراً في قاعة الفريدة – الرياض.
قد يعجبك..أدير العقارية تطلق مشاريع ضخمة في الرياض بقيمة 4 مليارات ريال
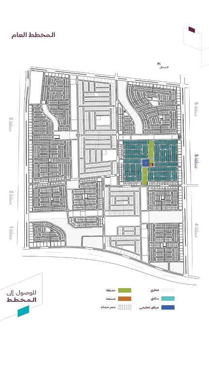
ويمتد مشروع “العالية” على مساحة إجمالية تبلغ 3,012,532.95 مترًا مربعًا، وهو يحتضن 6 مناطق كُبرى نموذجية تتنوع استخداماتها بين السكني والتجاري، تمنح مساحاتها الرحبة المستثمرين والمطورين العقاريين فرصة تقديم منتجات سكنية واستثمارية رائدة تواكب الطلب الحالي والمستقبلي على السكن والاستثمار في منطقة شرق الرياض.
وتشمل أراضي زون 5 المعروضة للبيع في المزاد العلني، قطعًا سكنية وتجارية بمساحات متنوعة، تبدأ من 300 متر مربع وحتى 2,500 متر مربع، وتتميز بموقعها الاستراتيجي في حي “الوسام” المتميز، والذي يتمتع ببنية تحتية متطورة وخدمات متكاملة.
وتعد منطقة شرق الرياض من أكثر المناطق الحيوية في العاصمة السعودية الرياض، وتتميز بوجود العديد من المرافق الحيوية والتجارية، مما يجعلها وجهة جاذبة للاستثمارات العقارية.
ويأتي طرح أراضي مشروع “العالية” (زون 5) في المزاد العلني، ضمن خطة الشركة لتسريع وتيرة التطوير في المشروع، وتقديم الفرص الاستثمارية الجاذبة للمستثمرين والمطورين العقاريين.
شروط دخول المزاد
حددت شركة “العالية العقارية” عددًا من الشروط التي يجب توافرها في المشاركين. في المزاد العلني لأراضي مشروع “العالية” (زون 5)، وهي كالتالي:
- أن يكون المشارك سعودي الجنسية أو مقيمًا في المملكة العربية السعودية.
- أن يكون المشارك حاصلًا على رخصة مزاولة المهنة للمطور العقاري من الجهات المختصة.
- أن يقدم المشارك ضمان بنكي بقيمة 20% من قيمة الأرض المراد شراؤها.
خطوات المشاركة في المزاد
يمكن للمستثمرين والمطورين العقاريين الراغبين في المشاركة في المزاد العلني لأراضي مشروع “العالية” (زون 5). الاطلاع على شروط المشاركة وتقديم طلبات الاشتراك عبر الموقع الإلكتروني للشركة، وذلك قبل يوم 12 فبراير 2024م.
وسيتم الإعلان عن نتائج المزاد العلني يوم الأربعاء الموافق 14 فبراير 2024م، في قاعة الفريدة – الرياض.
توقعات بنجاح المزاد
في حين تتوقع شركة “العالية العقارية” أن يشهد المزاد العلني لأراضي مشروع “العالية” (زون 5). إقبالًا كبيرًا من المستثمرين والمطورين العقاريين. وذلك نظرًا لموقع المشروع الاستراتيجي وخدماته المتكاملة وأسعاره التنافسية.
كما تعد منطقة شرق الرياض من أكثر المناطق الحيوية في العاصمة السعودية الرياض. بينما تتميز بوجود العديد من المرافق الحيوية والتجارية، مما يجعلها وجهة جاذبة للاستثمارات العقارية.
ومن المتوقع أن يساهم طرح أراضي مشروع “العالية” (زون 5) في المزاد العلني. في تعزيز مكانة الشركة كأحد أهم المطورين العقاريين في المملكة العربية السعودية. وتوفير الفرص الاستثمارية الجاذبة للمستثمرين والمطورين العقاريين.
مقالات ذات صلة:
«أدير العقارية» تطرح الفرصة الثانية من مشروع «سوار» في جنوب جدة للبيع المباشر

التعليقات مغلقة.